PEREGRINE PENINSULA
200 E Michigan Ave Kalamazoo, MI 49007
Property Details
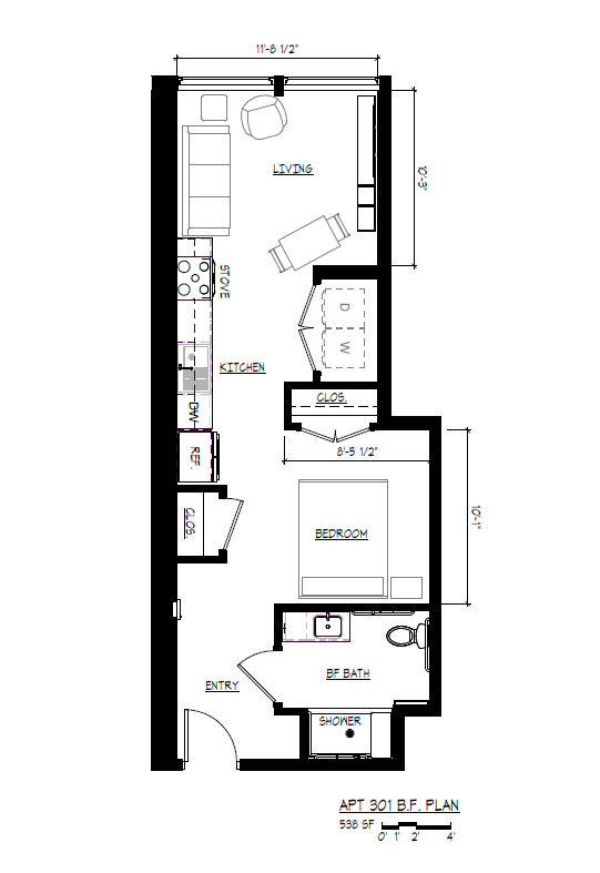
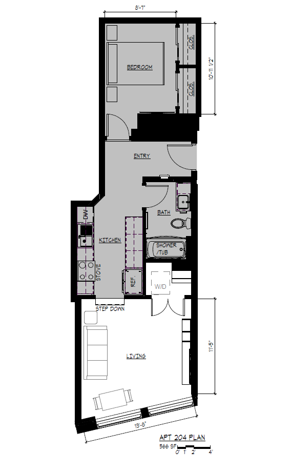
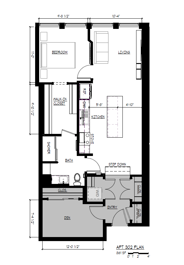
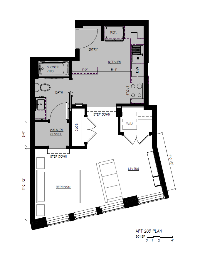
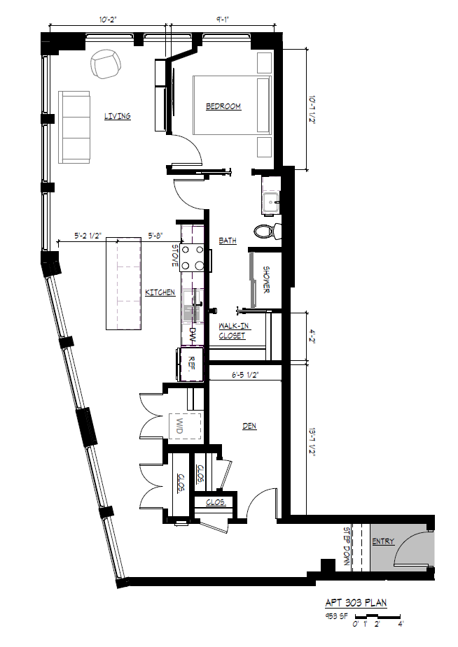
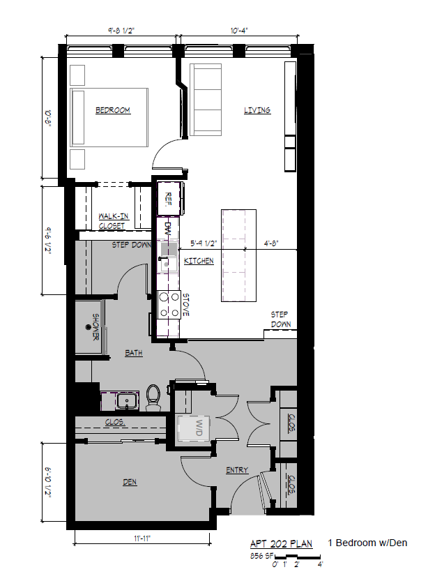
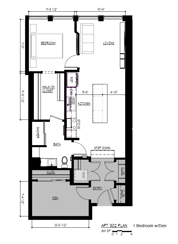
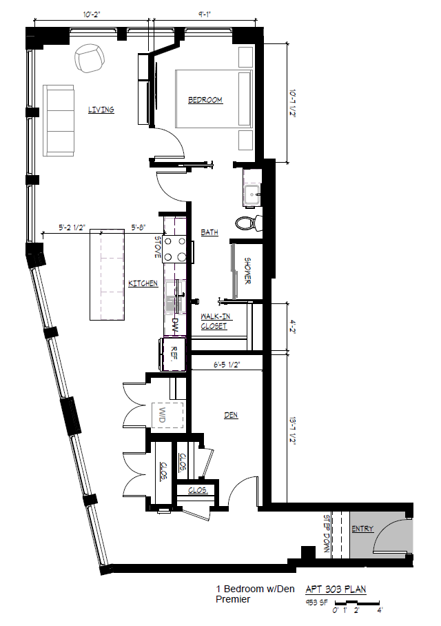
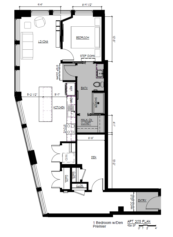
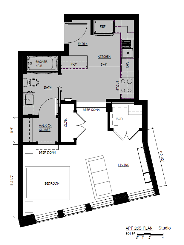
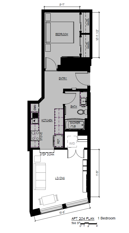
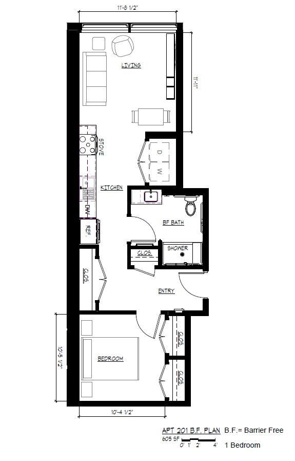
Peregrine Company is excited to announce we are in the midst of developing 11 new apartments which will include studios, 1 bedrooms, and 1 bedroom dens. These apartments will feature unparalleled design and finishes. At the corner of 200 E. Michigan and 111 Portage Road, you are just a block away from the Western Michigan University Homer Stryker MD School of Medicine. Just steps from your building, you have an array of delicious restaurants and entertainment!
AND..... that's not all! A new restaurant will be opening on the 1st floor in the Spring of 2026! More information to be announced soon!
Keep an eye on this page for renderings and floorplans! Check out our social media pages for videos of construction progress!
Waitlist to open Spring of 2026.
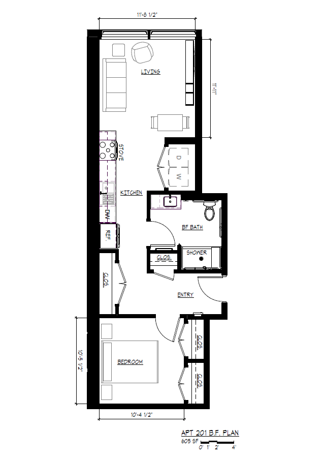
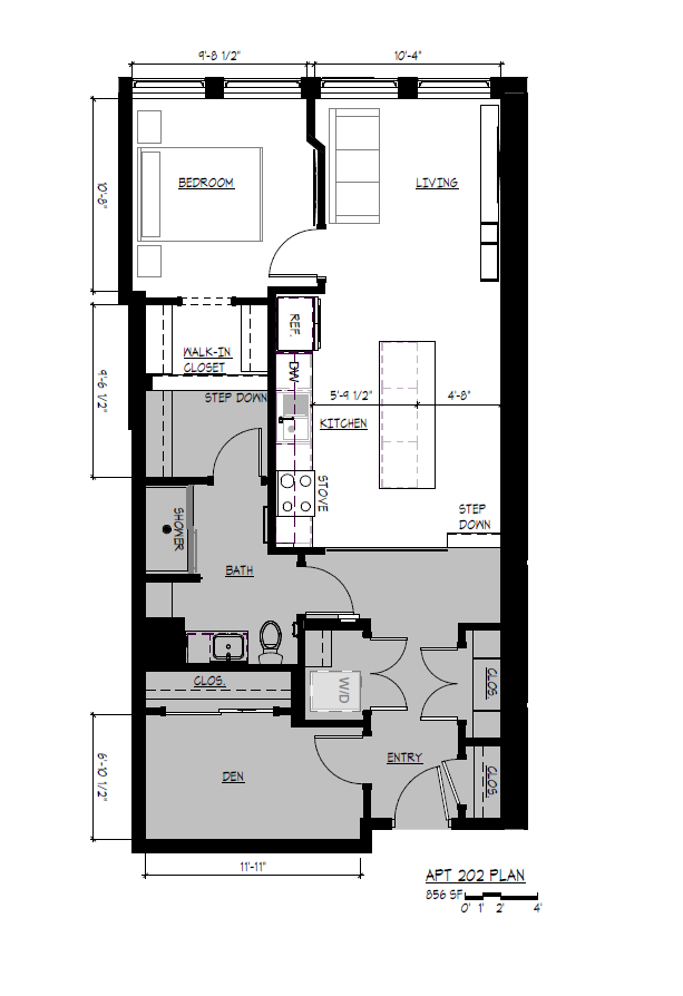
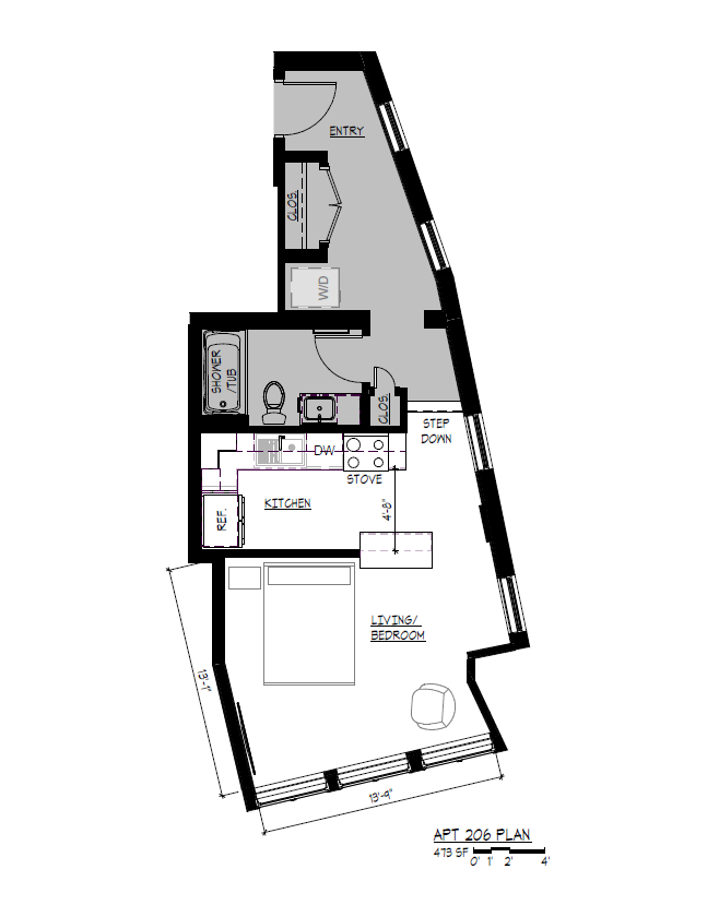
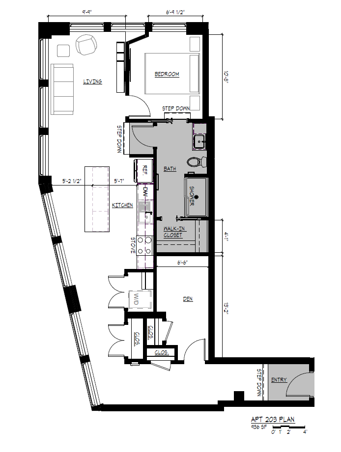
Explore Availability
Community Amenities
Elevators
Secure Entries
Parking behind building
Apartment Amenities
Wood Floors
City Views
Keyless Entry
Granite Countertops
Quiet Close Cabinets
Exposed Brick Options
Stainless Steel Appliances
Contact Us
Security Deposit
Starting at $1,000
Terms
12 month lease






















