336 S Kalamazoo Mall, 202, Kalamazoo, MI 49007
336 S Kalamazoo Mall, 202, Kalamazoo, MI 49007
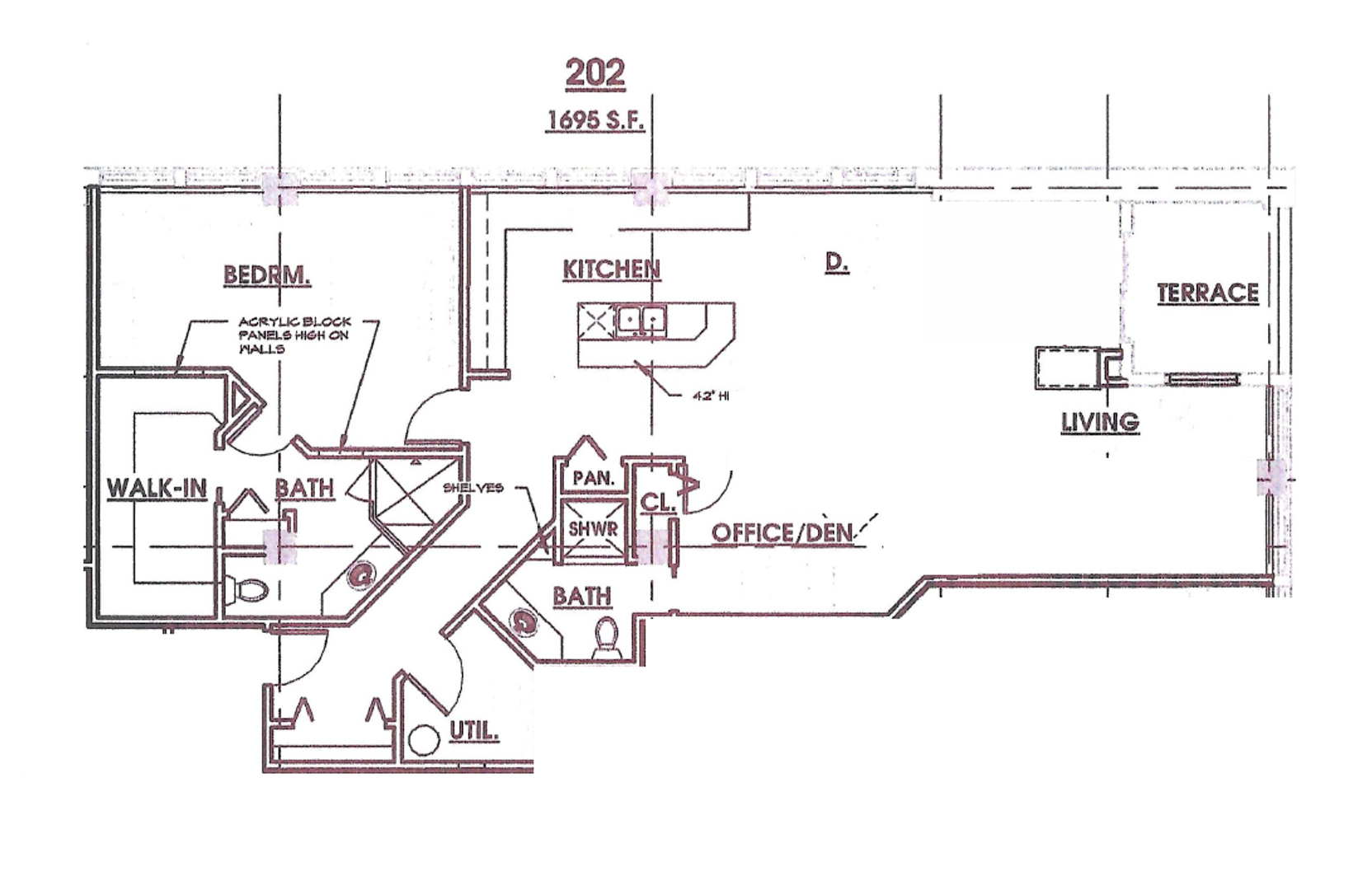
Tower 202
Peregrine Towers offer you this unique floorplan of a 1 bedroom, 2 full bathroom apartment. It boasts a hefty 1,695 square feet of living space. There is a large common area space that can be used for a dining, living, AND office area.
The large recessed balcony and living room windows overlook the Kalamazoo Mall so you can soak in the downtown Kalamazoo energy! There is an abundant amount of windows allowing plenty of natural light for those plant lovers! This apartment does not lack closet space with a large entry closet, utility room with your washer and dryer, 2 pantry closets. The bedroom walk-in closet is the size of most bedrooms! The kitchen is an incredible size with lots of counter space and enough cabinets to store all of the chef's essentials!
The building features a secured entrance, elevator, temp controlled indoor parking, a secure mail/package room, and a 24/7 gym. Located on Kalamazoo Mall, you can immerse yourself in the vibrant energy of downtown living, with easy, walkable access to bustling shops, delicious restaurants, and exciting entertainment venues!
The large recessed balcony and living room windows overlook the Kalamazoo Mall so you can soak in the downtown Kalamazoo energy! There is an abundant amount of windows allowing plenty of natural light for those plant lovers! This apartment does not lack closet space with a large entry closet, utility room with your washer and dryer, 2 pantry closets. The bedroom walk-in closet is the size of most bedrooms! The kitchen is an incredible size with lots of counter space and enough cabinets to store all of the chef's essentials!
The building features a secured entrance, elevator, temp controlled indoor parking, a secure mail/package room, and a 24/7 gym. Located on Kalamazoo Mall, you can immerse yourself in the vibrant energy of downtown living, with easy, walkable access to bustling shops, delicious restaurants, and exciting entertainment venues!
Contact us:






















